-16%

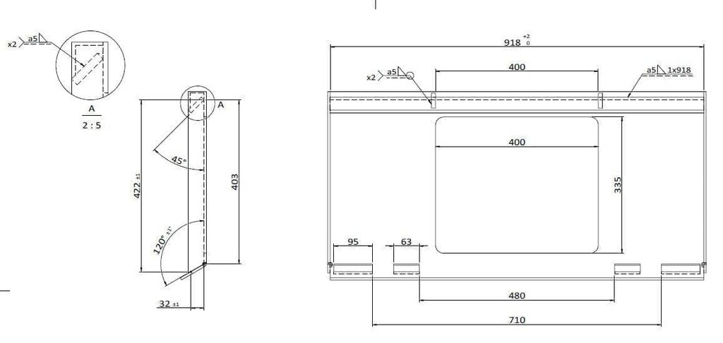
Svetsfäste Bobcat m.fl. 910 mm

UM06001
1 690 kr 1 417 kr / Styck
Exkl moms
Antal i förpackning: 1

Svetsfäste för bl.a. Bobcat, Caterpillar, Gehl och Mustang. Bredd: 910 mm.
Läs mer

Produktvideor

Ta en titt på produktvideor, genomgångar och kundintervjuer för att lära dig mer om våra produkter.

Beskrivning av Svetsfäste Bobcat m.fl. 910 mm

Svetsfäste för bl.a. Bobcat, Caterpillar, Gehl och Mustang

Exempel på Bobcatmodell. Detta fäste kan passa till S70.

Bredd: 910 mm.

OBS! Kontrollera alltid måtten på måttskiss nedan, så att du väljer rätt fäste!

Specifikationer

Vikt 20 kg

Produktfrågor